Mykonos TRU Paradise – 5 star beach club Paradise Mykonos, 2017

In March 2017, Human Point was appointed -within the grounds of property and new business development services that the company offers- the provision of the architectural study and supervision for the total renovation of Paradise Club at Paradise beach in Mykonos considering the need of a radical reassessment of spaces for optimum functionality purposes.
During the past decades, Paradise Club shared an internationally acknowledged success operating mainly as a night club in a semi-open space, hosting some indoor areas as well.
At that time, the building was situated literally on the beach and the main entrance of the club was located within the surrounding hotel premises.
The redefinition of its operation came up from the desire of the entrepreneurs-owners to create
an outdoor space that could run as an all day club, offering premium F&B and entertainment services.
The club could also operate at night on predetermined dates, so as to host special music events with artists of international reputation.
The proposal of our team was to create a new space totally integrated within the extremely beautiful existing natural environment, yet, with references from contemporary organic art elements, as well as, traditional construction materials. Overall, the aim was to generate the sense of a new experience within the particular morphological surroundings of the area.’

Part of the existent club was a surrounding area of 2.000sq.m and a building of 400sq.m.
In order for the building spaces to open up and to obtain a separate and distinct entrance from the surrounding hotel premises, two lateral properties, of 4.000sq.m in total, were ceded. The project also embodied 700sq.m of Paradise beach.
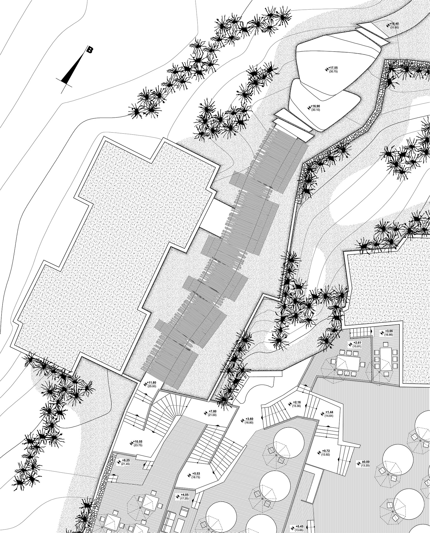
The architectural study was developed taking into consideration the liaison between 4 basic operational units: a. the entrance and the multilevel access to the main F&B spaces, b. the separate “common area” levels c. the pool level and some indoor operation spaces and d. the beach and its surrounding coast.
a. The new, main entrance – literally opposite the pre-existing one and with a separate access point from the main road- is situated on the highest level of the property.
A descending path to the club is created, with various intermediate levels operating as premium “common areas” and leading all the way down to the beach. The concept of the entrance design is an organic installation structured by 5 meter tall bamboo beams grasped on the ground, with a curvilinear shape formulating a natural tunnel.
The design is finalized under an artistic scenery perspective, with the insertion of abstract, human sculptures inspired by Cycladic figurines. For the floor, a mixture of concrete and sand was applied creating a natural carpet that extends from the highest entrance level, through the main staircase and all the way down to the lowest pool level.
b. The multi level “common areas” were designed with reference to the Cycladic morphological element of a flowerbed –“parteri” and serve as private areas for gatherings and parties, but also as relaxing stations while descending the main staircase. The floor is covered with a natural, minimal, wood coat creating a discreet gateway to the sea view. Special emphasis was placed on the sculptural design of the main staircase that connects all levels, with reference to local morphological features, such as, large irregular stairs.
c. The pool level, which rises 1 meter and half up from the beach level, consists of the pool, the surrounding space -designed as a gathering area for drinks and fun- and part of the restaurant area. On the same level, indoor and outdoor spaces for the preparation of drinks and food were reconstructed or refurbished depending the condition. Special attention was attributed to the study and demanding planning of the preparation room and of the main sheltered bar, for it to resemble an unusual interior design frame.
At the basement level, the guest toilets were placed and redesigned following a minimal and curvilinear synthesis, totally aligned with all other spaces and aesthetics.
Special emphasis was also placed on the creation and set up of the DJ stage section, considering the acoustic prescriptions ordered by space geometry and dimensions.
d. Finally, some mobile, wooden installations and equipment were placed on the beach for guests to relax and enjoy the sea. Part of the designed amenities of the club was the study of a floating platform for yachts and watercrafts.
Throughout the project, natural construction materials were used such as stone, bamboo, wood, concrete & sand mixture and organic plaster. The furniture is tailor-made, made of wood with cushions of white organic fabric.
Project Overview
- Client and location: TRU Paradise Co, Paradise Mykonos GRE
- Project: rennovation of a beach club with restaurant and pool
- What we did: real estate development – new business development – project & construction management – concept development – architectural design – architectural & engineering studies – 3d renderings – presentation – project & construction consulting and management
- Status: delivered in June 2017
Credits
- Architects collaborators: Sonia Sarkissian, Jannis Athanassopoulos, Giorgos Stamatakis, Alexandra Syriou
- Engineers collaborators: Babis Georgiou
- Sculptor collaborator: Giorgos Gyparakis
- Special subcontractors: Fixit North – Giorgos Dialektopoulos, Exotiq – Manos Mpaltasis



